Description
Belle maison uni familiale à vendre sur les hauteurs de Seraing.
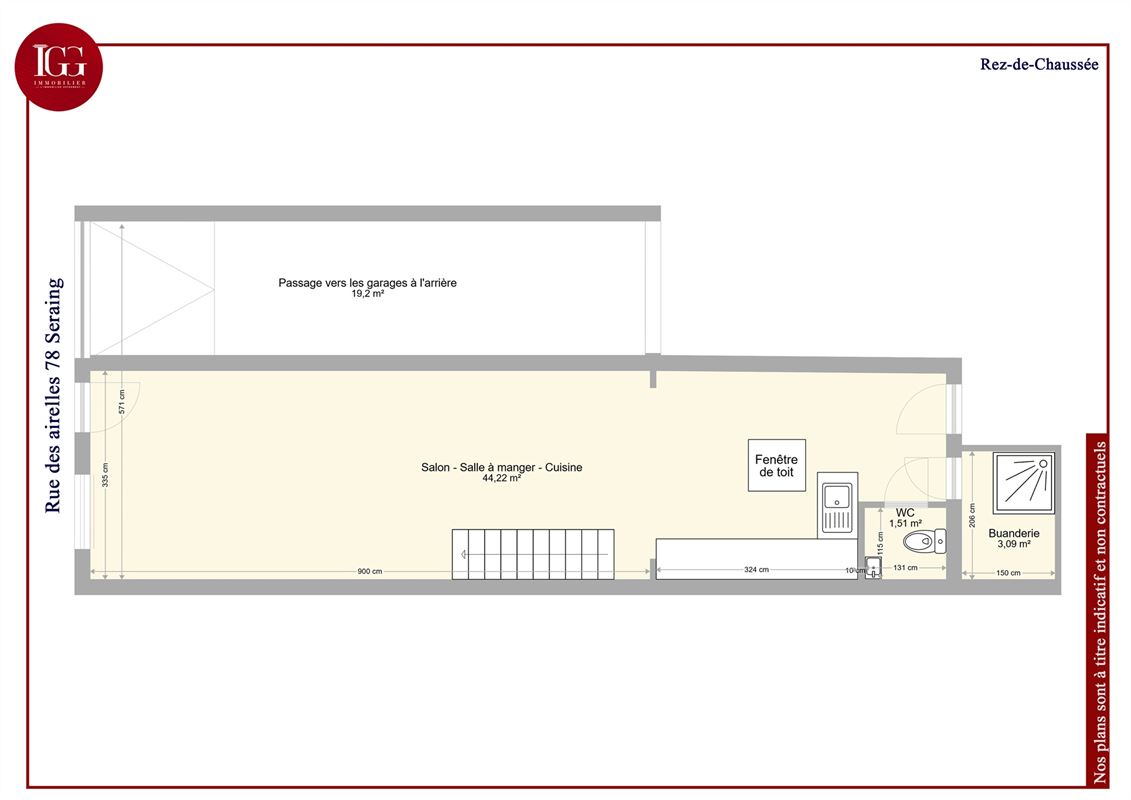
Elle se compose au RDC d'un grand séjour ouvert sur la cuisine donnant accès à une terrasse, une salle de douche avec espace buanderie, un WC indépendant.
Au premier deux belles chambres, une grande salle de bain baignoire.
Le bien dispose d'un beau grenier pouvant être aménagé en chambre accès à prévoir.
Châssis double vitrage PVC, électricité conforme jusqu'en 2033, PEB D.
Passage latéral donnant accès à 2 garages. RC: 361€.
FAIRE OFFRE
Surface de la salle de séjour
42,22 m²
Toilettes
2
Cuisine
Non
Type de cuisine
Non communiqué
Double vitrage
Non
Type d'énergie du chauffage
Chauffage central au gaz
Demandez une
évaluation gratuite
Prêt à commencer ? Demandez dès aujourd'hui une estimation gratuite de votre propriété. Nous évaluerons votre bien immobilier de manière professionnelle et précise, vous fournissant ainsi une base solide pour votre décision de vente.