Description
IGG IIMMO à le plaisir de vous présenter cette charmante maison dans le bucolique village de Sprimont.
Cette maison à parachever vous offre de nombreuses possibilités de part ses volumes et son terrain à bâtir adjacent.
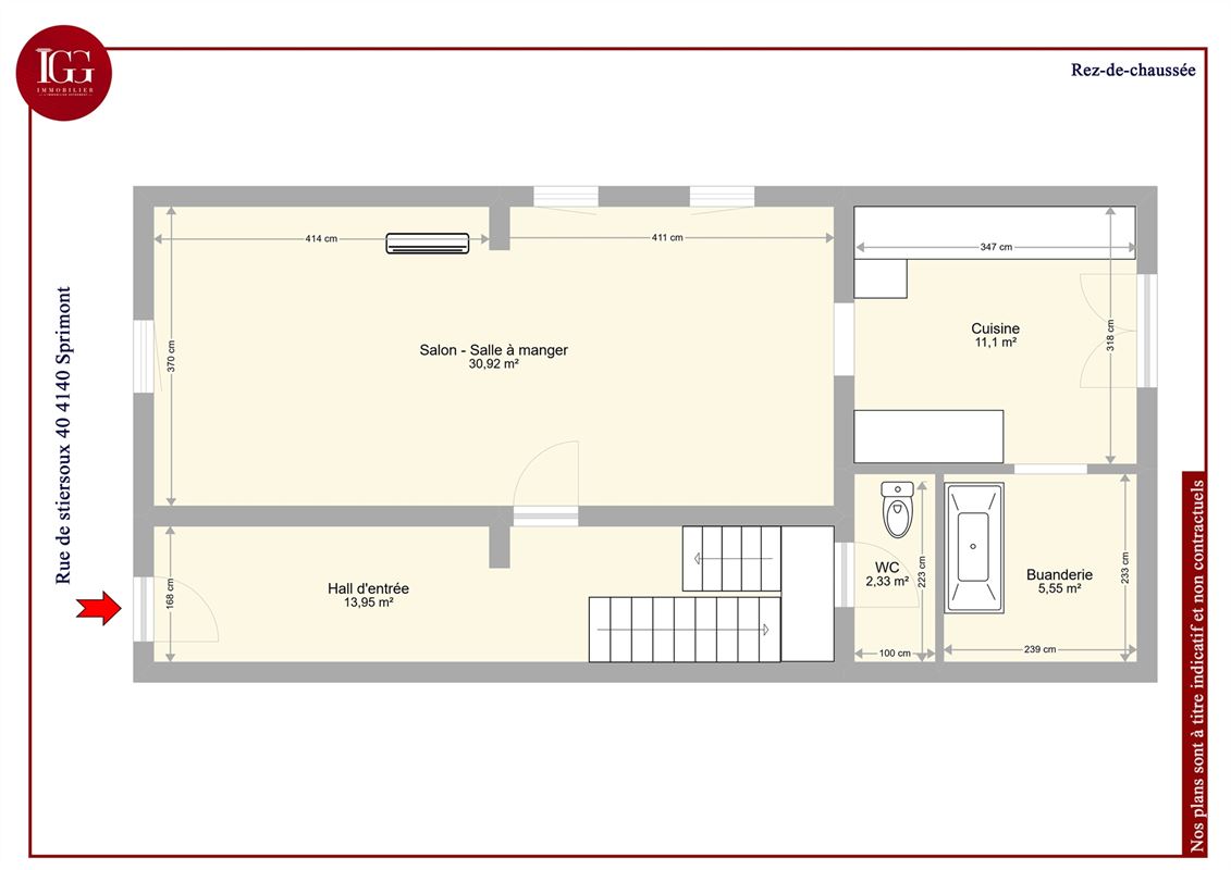
Elle se compose au rdc d’un hall d’entrée , d’un séjour ouvert sur la cuisine, une salle de bain et un Wc.
Au 1er un hall de nuit desservant 2 chambres et un bureau
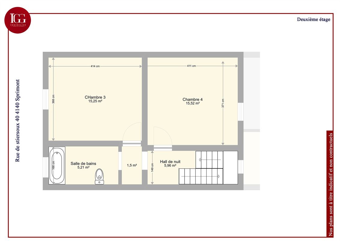
Au 2ème un hall de nuit donnant accès a une salle de bain et deux chambres supplémentaires.
Le bien dispose également d’un grenier aménagé pouvant servir de 5ième chambre ou de bureau et de deux caves.
RC: 619€ PEB G consommation théorique totale d’énergie primaire 102 238Kwh/an consommation spécifique d’énergie primaire 526Kwh/m2 an.
Châssis double vitrage PVC, nouvelle toiture, isolation au sol.
Cette maison n'attends que vos idées pour être finalisée.
. Renseignements et visites 0475/68.84.08 ou gilles@igg.immo
Surface de la salle de séjour
30,92 m²
Toilettes
1
Cuisine
Oui
Type de cuisine
Cuisine Américaine - hyper-équipée
Double vitrage
Non
Type d'énergie du chauffage
Poêle à granulés
Prix
269 000 €
Demandez une
évaluation gratuite
Prêt à commencer ? Demandez dès aujourd'hui une estimation gratuite de votre propriété. Nous évaluerons votre bien immobilier de manière professionnelle et précise, vous fournissant ainsi une base solide pour votre décision de vente.