Description
IGG IMMO à le plaisir de vous présenter cette jolie maison uni familiale située à Alleur.
Elle se compose comme suit :
AU RDC: Un hall d'entrée, un magnifique séjour ouvert sur la cuisine équipée, une salle de bain et un espace buanderie.
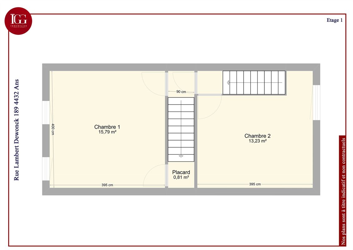
Au 1er : deux belles chambres.
Au 2ième: Un grande chambre mansardée.
La maison dispose également d'une petite terrasse et d'un beau jardin.
Châssis double vitrage PVC, électricité à revoir partiellement, chauffage central au gaz, PEB C, RC: 412€.
Disponible 1er janvier 2024.
Infos et visites : 0489/84 99 99 ou contact@igg.immo
Surface de la salle de séjour
32,13 m²
Toilettes
1
Cuisine
Non
Type de cuisine
Non communiqué
Double vitrage
Non
Type d'énergie du chauffage
Non communiqué
Prix
239 000 €
Demandez une
évaluation gratuite
Prêt à commencer ? Demandez dès aujourd'hui une estimation gratuite de votre propriété. Nous évaluerons votre bien immobilier de manière professionnelle et précise, vous fournissant ainsi une base solide pour votre décision de vente.