Description
Maison unifamiliale située sur la commune de Tilleur (Saint-Nicolas), elle se compose au rdc d''un hall d''entrée, d''une séjour, un kitchenette, un WC.
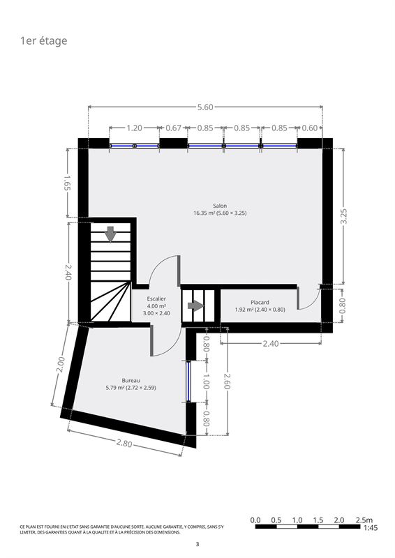
Au 1er une grande chambre et un bureau pouvant faire office de chambre d''enfant.
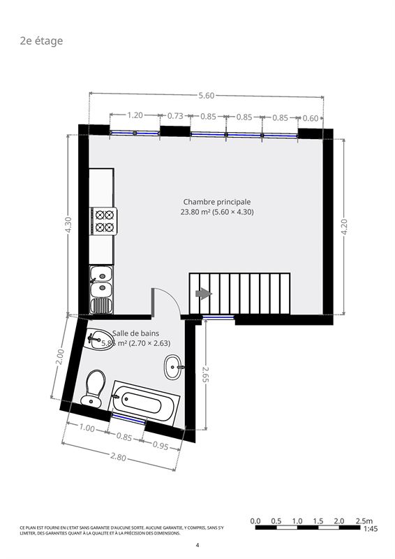
Au deuxième une spacieuse cuisine et une salle de bain.
Châssis mixte ( simple vitrage bois et Alu aux étages) et un double PVC avec volet au rdc, chauffage central au mazout, la maison dispose de deux entrées séparées.
Electricité à revoir, toiture en état. RC 680€. Faire Offre.
Surface de la salle de séjour
18 m²
Toilettes
2
Cuisine
Non
Type de cuisine
Non communiqué
Double vitrage
Non
Type d'énergie du chauffage
Chauffage central mazout
Demandez une
évaluation gratuite
Prêt à commencer ? Demandez dès aujourd'hui une estimation gratuite de votre propriété. Nous évaluerons votre bien immobilier de manière professionnelle et précise, vous fournissant ainsi une base solide pour votre décision de vente.