Description
OPTION ! ! ! Jolie maison en super état situé à Saint-Nicolas, elle se compose de la manière suivante :
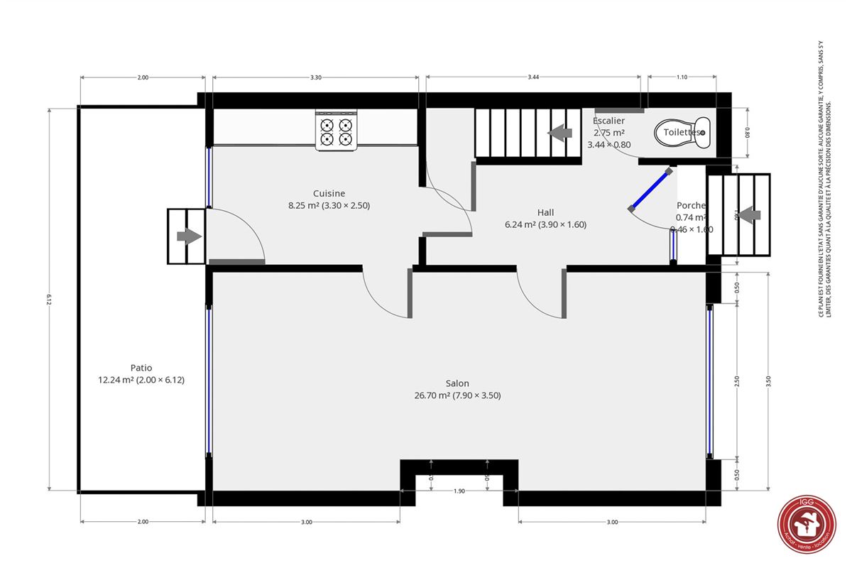
Au rdc: un hall d''entrée,un salon, une salle à manger, une cuisine semi-équipée donnant accès à un patio et au jardin.
Au premier : trois chambres et une salle de bain.
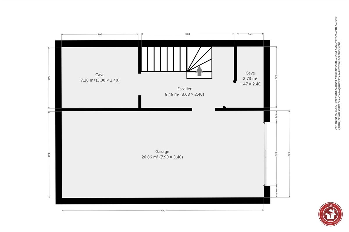
Le bien dispose également de deux caves, un garage avec volet électrique.
Châssis double vitrage PVC en partie (reste deux fenêtres à changer), RC :920euros, Toiture de 2010 PEB : D Electricité conforme jusqu''en 2036.
Maison prête à vivre ! Faire Offre !
Toilettes
2
Cuisine
Non
Type de cuisine
Non communiqué
Double vitrage
Non
Type d'énergie du chauffage
Chauffage central au gaz
Demandez une
évaluation gratuite
Prêt à commencer ? Demandez dès aujourd'hui une estimation gratuite de votre propriété. Nous évaluerons votre bien immobilier de manière professionnelle et précise, vous fournissant ainsi une base solide pour votre décision de vente.