Description
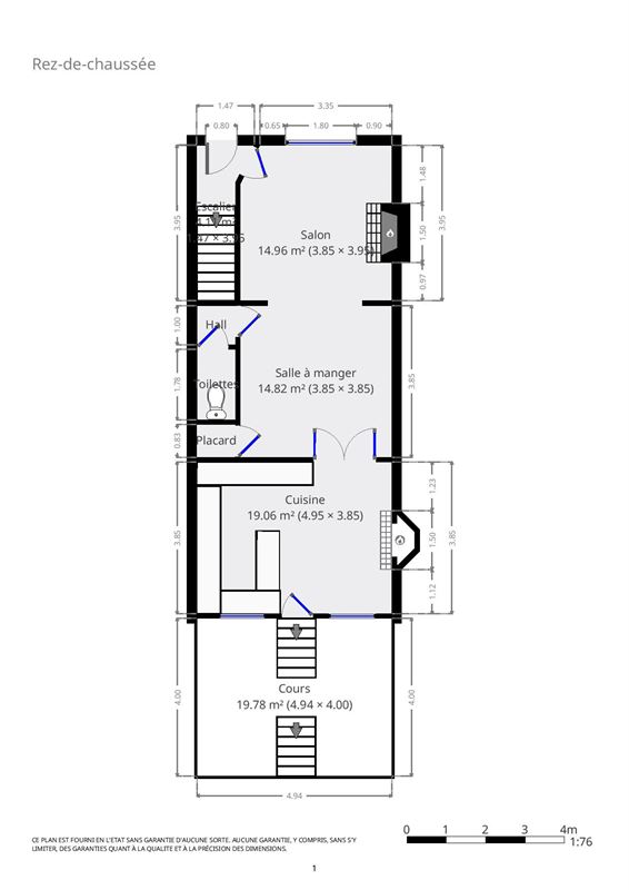
Jolie maison à remettre aux goûts du jour sur Saint-Nicolas, elle se compose d''un hall d''entrée, d''une salon, d''une salle à manger, une grande cuisine équipée, un wc indépendant, une cave, deux chambres et un grenier ( pas accessible actuellement), une terrasse et un jardin.
Châssis SV alu, électricité à revoir, toiture d''époque en bon état, chauffage par convecteur gaz. RC : 232€. PEB G.
Maison saine et habitable, quartier calme et à proximité de nombreuses commodités ( commerce, ecole, transport, marché) .
A visiter avant qu''il ne soit trop tard ! Faire Offre.
Cuisine
Non
Type de cuisine
Non communiqué
Double vitrage
Non
Type d'énergie du chauffage
Non communiqué
Demandez une
évaluation gratuite
Prêt à commencer ? Demandez dès aujourd'hui une estimation gratuite de votre propriété. Nous évaluerons votre bien immobilier de manière professionnelle et précise, vous fournissant ainsi une base solide pour votre décision de vente.