Description
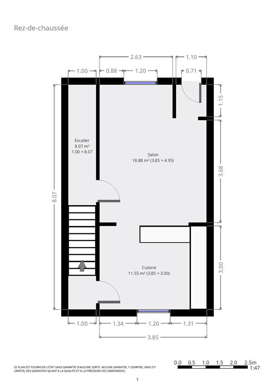
Grande maison à rénover partiellement située sur la commune de Mons-mez-Liège (Flémalle), elle se compose d''un hall d''entrée, d''un espace salon,d''une cuisine équipée ouverte, cinq chambres, une salle de bain, une cave, une terrasse, un jardin non-attenant.
RC: 252€ possibilité d''obtenir les frais d''enregistrements réduits, châssis double vitrage PVC, chauffage central gaz, électricité à revoir partiellement, toiture en bon état. PEB G.
A visiter avant qu''il ne soit trop tard. Faire Offre.
Toilettes
1
Cuisine
Oui
Type de cuisine
Kitchenette
Double vitrage
Non
Type d'énergie du chauffage
Chauffage central au gaz
Demandez une
évaluation gratuite
Prêt à commencer ? Demandez dès aujourd'hui une estimation gratuite de votre propriété. Nous évaluerons votre bien immobilier de manière professionnelle et précise, vous fournissant ainsi une base solide pour votre décision de vente.