Description
Bungalow à remettre aux goûts du jour sur Grâce-Hollogne
IGG IMMO a le plaisir de vous présenter ce charmant bungalow à rénover, idéalement situé dans une rue calme et sans issue, sur la commune de Grâce-Hollogne.
Il se compose comme suit :
AU rez-de-chaussée : Un hall d’entrée, un lumineux séjour de ± 21 m², une cuisine, trois chambres et une salle de douche.
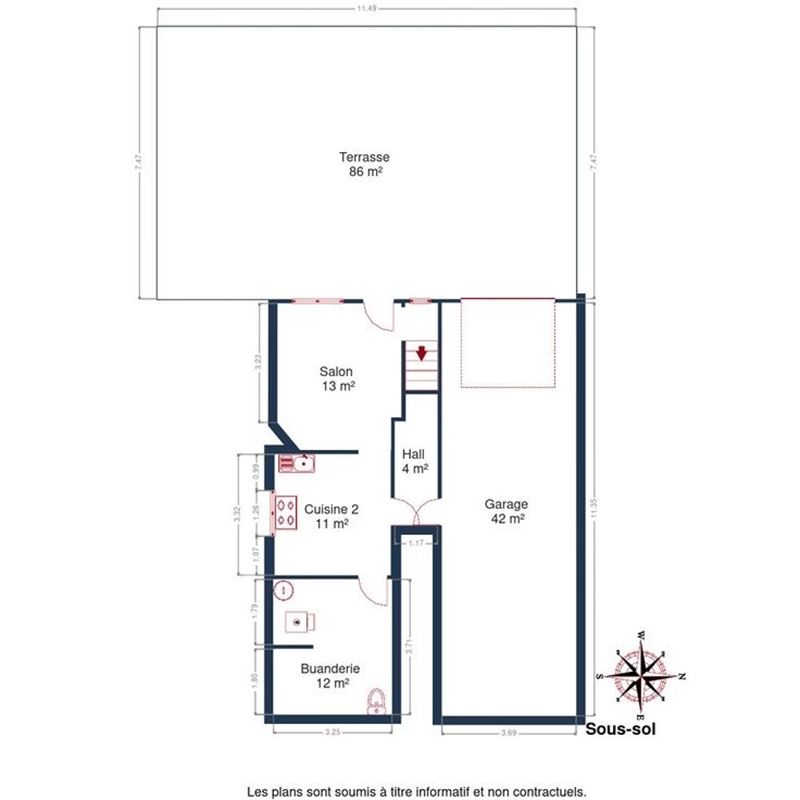
Au sous-sol : une buanderie avec espace chaufferie, une seconde cuisine, un garage, une pièce polyvalente actuellement aménagée en second salon, pouvant être utilisée comme bureau, salle de jeux, espace hobby, etc.
Caractéristiques techniques : Chauffage central au mazout, châssis en bois simple vitrage, électricité à remettre en conformité, toiture en bon état général, PEB : E
Ce bien offre un beau potentiel après rénovation, dans un environnement paisible et résidentiel.
Informations et visites : 0498/39 66 43 ou contact@igg.immo
Année de construction
1966
Surface de la salle de séjour
21 m²
Toilettes
2
Cuisine
Oui
Type de cuisine
Meublée
Alarme
Non
Double vitrage
Non
Type d'énergie du chauffage
Chauffage central mazout
Prix
210 000 €
Demandez une
évaluation gratuite
Prêt à commencer ? Demandez dès aujourd'hui une estimation gratuite de votre propriété. Nous évaluerons votre bien immobilier de manière professionnelle et précise, vous fournissant ainsi une base solide pour votre décision de vente.